GSM: +(386) 41 761 957 E-pošta: info@simobilia.si Web: www.simobilia.si
Ta nepremičnina je v našem sistemu izklopljena. Lahko gre za prodano nepremičnino.
Če iščete aktualne ponudbe si jih prosim oglejte na naslednji povezavi:
Predstavljamo vam novost na koroškem nepremičninskem trgu.
V Mežici je v nastajanju nova urbana stanovanjska soseska, "SOSESKA 21" ( www.soseska21.si )
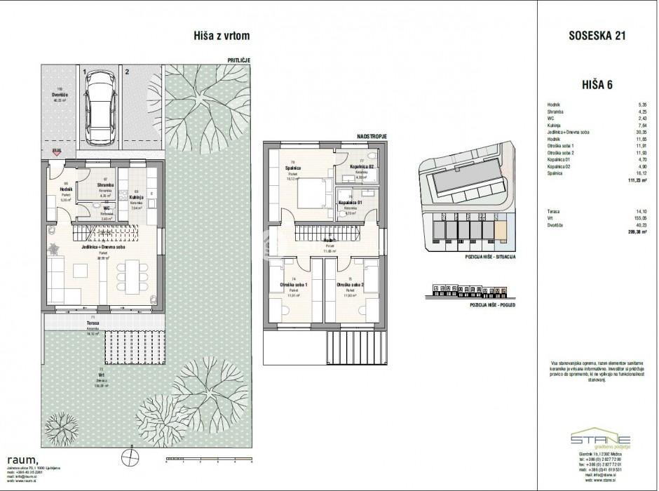
"SOSESKA 21" je sestavljena iz skrbno zasnovanega večstanovanjskega objekta v neposredni bližini pa je sklop šestih vrstnih hiš.
Umeščena je v mirnem in zelenem okolju, na lokaciji nekdanjih vrtov in novo nastajajoči sprehajalni poti, promenadi, do centra Mežice.
"SOSESKA 21" je urejena tako, da upošteva visoke bivanjske standarde, stanovanjske površine so svetle, prostorne in zračne, takšne, ki dihajo skupaj z okolico. Okolica je zelena, lokacija je celodnevno osončena. Lepi so razgledi na okoliške hribe.
Novost v okolici predstavlja sklop VRSTNIH HIŠ, urejenih je 6 enot, ki bodo med sabo povezane, pa vendar bo vsaka enota svoj svet.
Vrstne hiše z zemljiščem in etažnostjo P+N, so v neposredni bližini večstanovanjskega objekta in so orientirane tako, da je zagotovljena zasebnost.
Razporeditev prostor v vrstnih hišah je moderna, enostavna in funkcionalna. V pritličju je dnevno-bivalni del, kjer je urejen WC, shramba, hodnik, kuhinja, jedilnica ter dnevna soba, i sta povezani, urejen je prehod na teraso ter vrt, zelenico. V nadstropju sta urejeni dve otroški sobi, ter spalnica in dve kopalnici. Dostop do etaže je urejen preko stopnišča in hodnika.
Vrstne hiše in večstanovanjski objekt so v novogradnji "SOSESKA 21" preudarno načrtovani z izbranimi materiali in z upoštevanjem zahtev glede energetske učinkovitosti, kar bo zmanjšalo obratovalne stroške.
VEČSTANOVANJSKI OBJEKT je zasnovan kot manjši večstanovanjski objekt, etažnosti K+P+N1+N2, s predvidenimi 15 stanovanjskimi enotami, in funkcionalnim zemljiščem.
V pritličju in dveh nadstropjih, ki jih povezuje stopnišče in dvigalo, so predvidena funkcionalno in moderno, z odprto arhitekturo, oblikovana stanovanja različnih velikosti.
Na voljo so stanovanja velikosti od 50,36 m2 bivanjske površine do 75,52 m2 bivanjske površine, tipa A in tipa B.
Tip A vsebuje predprostor, kopalnico, dve spalnici, kuhinjo v povezavi z jedilnico in dnevno sobo, WC in shrambo.
Tip B bo vsebuje predprostor, kopalnico, ločen WC, spalnico, kuhinja bo v povezavi z jedilnico in dnevno sobo.
Pritlična stanovanja imajo prostorne terase v izmeri cca 20 m2 ter zelenico. Stanovanja v nadstropjih pa večje balkonske površine v izmeri cca 20 m2, ki predstavljajo dodatno bivanjsko kvaliteto.
K trisobnim stanovanjem pripadata dve lastniški parkirni mesti v garažni hiši, dvosobnim stanovanjem po eno lastniško parkirno mesto v garažni hiši ter eno lastniško pred objektom.
Rezervacije
Trenutno sprejemamo rezervacije. Po pridobitvi gradbenega dovoljenja bomo pričeli z uradno prodajo stanovanj. Takrat bomo poklicali vse potencialne kupce, ki so opravili rezervacijo stanovanja k podpisu kupoprodajne pogodbe.
PREDVIDEN PRIČETEK DEL: maj 2022
PREDVIDEN ZAKLJUČEK DEL in PRIMOPREDAJA: jesen 2023
Za vas smo dosegljivi na 041 761 957- stanko ali na 031 649 378-iva
Pišite za več informacij tuda na Ta e-poštni naslov je zaščiten proti smetenju. Potrebujete Javascript za pogled. ali Ta e-poštni naslov je zaščiten proti smetenju. Potrebujete Javascript za pogled. ali Ta e-poštni naslov je zaščiten proti smetenju. Potrebujete Javascript za pogled.
Lahko pa se oglasite po dogovoru kar v pisarni Trg 27 na Prevaljah.
ARHITEKT: RAUM arhitektura d.o.o., Jalnova ulica 70, Ljubljana, www.raum.si
INVESTITOR in IZVAJALEC: STANE gradbeno podjetje d.o.o, Glančnik 1b, Mežica, www.stane.si
Nepremičnine Koroška Simobilia smo specializiran posrednik nepremičnin:
NEPREMIČNINSKO SVETUJEMO
OMOGOČIMO VAREN PRENOS LASTNINSKE PRAVICE
NUDIMO KOMPLETNO NEPREMIČNINSKO STORITEV NA ENEM MESTU
UREDIMO DOKUMENTACIJO