GSM: +(386) 41 761 957 E-pošta: info@simobilia.si Web: www.simobilia.si
Ta nepremičnina je v našem sistemu izklopljena. Lahko gre za prodano nepremičnino.
Če iščete aktualne ponudbe si jih prosim oglejte na naslednji povezavi:
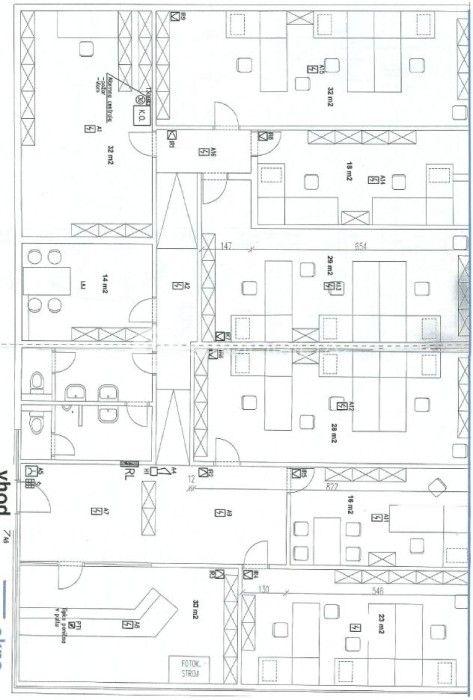
V Dravogradu prodamo več poslovnih prostorov v novejši poslovni zgrabi na Meži.
Poslovni prostori se nahajajo v pritličju. 8 ločenih enot skupaj z moškimi in ženskimi sanitarijami in čajno kuhinjo zagotavlja zaokroženo celoto.
Dostop je možen brez arhitektonskih ovir. Prostori so varovani. Urejeno je centralno ogrevanje in prezračevanje.
Prostori so svetli, z veliko steklenimi površinami.
Parkirišča so zagotovljena pred objektom.
Prostori se prodajo kot celota, oddajo v najem za daljše časovno obdobje, možen je tudi najem s kasnejšim odkupom.
Za več infomracij pokličite 041 761 957 ali pišite na Ta e-poštni naslov je zaščiten proti smetenju. Potrebujete Javascript za pogled.
SIMOBILIA nepremičnine d.o.o., Prisoje 60a, 2391 Prevalje
Prodajo, nakup, oddaja in najem hiš, poslovnih prostorov, stanovanj, vikendov, stavbnih in kmetijskih zemljišč.
POŠLJITE POVPRAŠEVANJE na info@simobilia.si ali nas pokličite na 031 649 378

Prodajate ali oddajate nepremičnino? Zaupajte to nalogo nam. Smo specializirani posrednik nepremičnin. Preverite ponudbo nepremičnin na naši spletni strani, ali pa nas kontaktirajte.
Med ponudbo nepremičnin niste našli iskanega? Zaupajte to nalogo nam. Takoj ko najdemo nepremičnino po vaših željah, vas bomo obvestili po e-pošti ali z SMS-om.