GSM: +(386) 41 761 957 E-pošta: info@simobilia.si Web: www.simobilia.si
Ta nepremičnina je v našem sistemu izklopljena. Lahko gre za prodano nepremičnino.
Če iščete aktualne ponudbe si jih prosim oglejte na naslednji povezavi:
Prodamo 3-sobno stanovanje, ki se nahaja v novogradnji v večstanovanjskem objektu Zeleni dom na Prevaljah. Stanovanje bo vseljivo konec l. 2019.
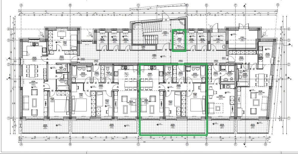
3-sobno stanovaje P03 se nahaja v pritličju objekta (glej fotomontažo).
Stanovanje obsega funkcionalno razporejen prostore , in sicer hodnik, wc, kopalnica, dnevna soba, kuhinja, 2 sobi, terasa in shramba . Na teraso lahko dostopate iz dnevne sobe , spalnice in iz sobe (otroške sobe). Stanovanje je svetlo, zračno in moderno zasnovano.
Shramba je izven stanovanja, nahaja pa se v etaži (glej tloris).
Neto površina stanovanja je v izmeri 86,67 m2:
Hodnik 4,33 m2
WC 2.43 m2
Kopalnica 6.59 m2
Hodnik 5,14 m2
Soba 8.59 m2
Soba 14.64 m2
Dnevna soba 12.75 m2
Kuhinja 11.68 m2
Terasa 17,16 m2
Shramba 4.02 m2
Možno je dokupiti teraso/zelenico z ograjo pred stanovanjsko enoto.
E: Ta e-poštni naslov je zaščiten proti smetenju. Potrebujete Javascript za pogled.
M: 00386 41 761 957
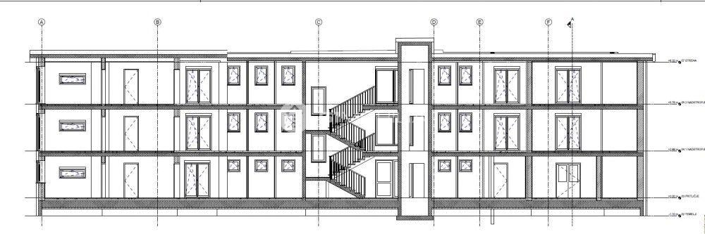
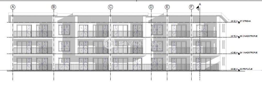
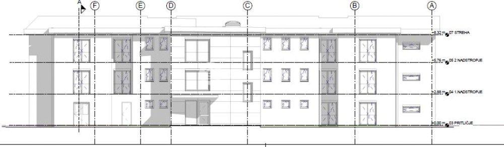
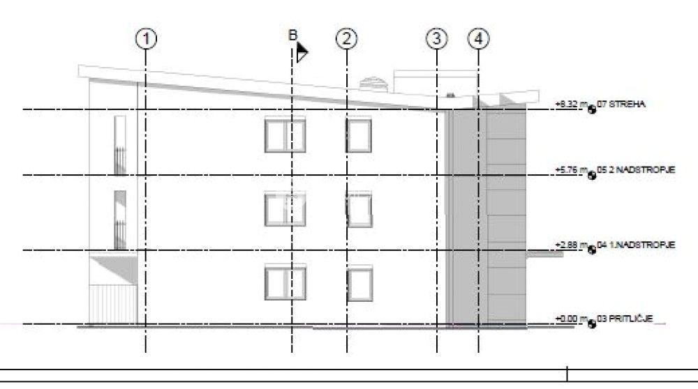
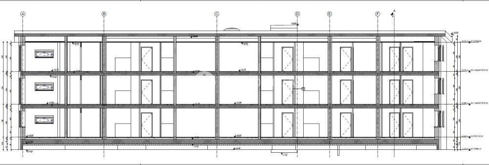
ZASNOVA VEČSTANOVANJSKEGA OBJEKTA Zeleni dom
Večstanovanjski objekt ZELENI DOM, ki bo nastal v urbanem centru Prevalj, je po 10 letih novost na nepremičninskem trgu, in je kot tak tudi poseben. Umeščen je med zelenje, na lokaciji nekdanjega vrtca Zgornji kraj in je načrtovan v skladu z visokimi bivanjskimi standardi.
Zasnovan je kot manjši večstanovanjski objekt s 15 enotami s funkcionalnim zemljiščem z bogato hortikulturo in zelenico namenjeno stanovalcem in prostorom za igro otrok.
V pritličju in dveh nadstropjih, ki jih povezuje stopnišče in dvigalo, so predvidena funkcionalno in moderno, z odprto arhitekturo, oblikovana stanovanja različnih velikosti .
Pritlična stanovanja imajo prostorne terase, stanovanja v nadstropjih pa večje balkonske površine, ki predstavljajo dodatno bivanjsko kvaliteto.
Blok je preudarno načrtovan z izbranimi materiali in z upoštevanjem zahtev glede energijske učinkovitosti, kar bo zmanjšalo obratovalne stroške.
Energetska učinkovitost stavbe je dosežena s kakovostnim toplotnim ovojem stavbe, okna so dobro izolativno zastekljena, PVC, troslojna zasteklitev, zunanje žaluzije.
Dostop: Predviden dostop do objekta je po obstoječ in poteka iz javne poti JP 851901, ki se navezuje na glavno cesto GII 112, odsek Poljana-Ravne. Na SZ delu zemljišča je načrtovano parkirišče za stanovalce in obiskovalce. Načrtovanih je 30 PM.
Objekt je priključen na ustrezno komunalno infrastrukturo skladno z zahtevami upravljalcev in sicer:
TEHNIČNI OPIS
Gradbena konstrukcija: Nosilna konstrukcija je zasnovana iz monolitno armirano betonskih plošč in nosilnih opečnih zidov. Temeljna plošča debeline 40 cm, zunanje opečne stene debeline 30 cm, notranje opečne stene debeline 20 cm, stopniščno jedro z dvigalnim jaškom je armirano betonske izvedbe. Medetažne plošče so debeline 20 cm. AB plošča balkonov je prekinjena s termo elementom.
Streha: Streha je zasnovana kot ravna v naklonu 9%. Kritina je iz mehke PVC strešne folije deb. 1,5 mm. Toplotna izolacija strehe je dvoslojna iz ekspandiranega polistirena debeline 15 + 10 cm. Ima zunanje odtoke.
Fasada: Fasada je zasnovana kot tankoslojna termoizolacijska fasada. Izolacijski sloj je iz EPS toplotne izolacije debeline 16 cm. Zaključni sloj je barvan v masi.
Okna: Stavbno pohištvo je iz PVC profilov širine 76 mm. Zasteklitev je troslojna termopan toplotne prehodnosti U=0.7W/m2K. skupna toplotna prehodnost okna znaša U=1.1W/m2K. okna brez parapeta, ki se odpirajo so opremljena z zunanjo ograjo višine do 100 cm.
Stene: Vse zidane stene so ometane, dvakrat kitane in beljene. Površine v skupnih prostorih kot so vezni hodniki in stopnišča se do višine 160 cm barvajo z pralno barvo.
Predelne stene: Notranje predelne stene so suhomontažne izvedbe debeline 10 cm. Obojestransko obložene z enojno gips ploščo 12,5 mm. Podkonstrukcija je kovinska z vmesnim slojem toplotne izolacije.
Vhodna vrata v stanovanja: Vhodna vrata v stanovanja imajo jeklen podboj in kompozitno vratno krilo. So zvočno izolativna 38 db. Požarni razred E30. Opremljena z varnostno cilindrično ključavnico in vratno kljuko iz kroma. Vrata v shrambe iz hodnika so kovinske izvedbe s polnim krilom bele barve. Vrata pri glavnem vhodu so iz alu profilov.
Notranja vrata: Vsa notranja vrata v stanovanjih so tipska lesena z lesenim podbojem.
Ograje: ograja na balkonih je predvidena i jeklenih profilov. Polnila so iz vertikalnih stojk ki so varjena na okvir v razmaku 10 cm. Stopniščna ograja je iz FE profilov s kovinskim držalom fi 40 mm. Elementi so medsebojno varjeni.
Dvigalo: načrtovano je osebno dvigalo.
Tlaki: Vsa vgrajena talna keramika ali gres je gladka in protizdrsnega razreda najmanj R9. V sanitarijah je stenska keramika položena do višine 2m. Gotovi parket je prve kvalitete.
Skupni prostori, kot talna obloga v skupnih prostorih je predvidena gres keramika antracit barve.
Stanovanja, v stanovanju je kot talna obloga predviden gotovi parket prve kategorije razen v kopalnici – keramika, hodnik – keramika, shramba – keramika.
Estrihi: estrihi so izvedeni kot cementni, mikroarmirani. Izvedeni kot plavajoči z zvočno izolacijo in stranskim trakom ob steni.
Zunanja ureditev: zunanja ureditev predstavlja območje namenjeno parkiriščem z nadstreškom za kolesa, zelenim površinam . dostop na parkirne površine ob objektu so predvidene v asfaltni izvedbi z obrobami iz betonskih robnikov dvignjenih nad asfaltno površino za 12 cm. Povsod bo omogočen dostop invalidnim osebam in sicer z izvedbo pogreznjenih robnikov. Vstopi v objekt in njegova uporaba je projektirano na takšen način, da v njem ni grajenih komunikacijskih ovir. Ostale površine so predvidene kot zelene površine z urejeno trato ter zasaditvijo z drevesi ter grmovnicami. Obstoječa drevesa proti javni poti in glavni cesti se ohranijo.
INSTALACIJE
Meritve: vsako stanovanje bo imelo zagotovljeno neodvisno meritev porabe elektrike, plina in vode. Skupna meritev električne energije se nanaša na skupne naprave in skupne prostore.
Ogrevanje: za pokrivanje vseh toplotnih potreb po ogrevanju in topli sanitarni vodi, bodo zagotovili plinski kotli ki bodo nameščeni v vsaki stanovanjski enoti objekta. Za ogrevanje prostorov je predvideno talno gretje. V kopalnici je predvideno tudi dodatno radiatorsko (lojtra).
Prezračevanje: Bivalni prostori stanovanj v objektu se prezračujejo naravno skozi okna oz. vrata. Sanitarni prostori (kopalnice in stranišča) se prezračujejo prisilno z lokalnimi ventilatorji, ki so predvideni za vsak posamezni prostor ločeno. Vsak ventilator ima svoje stikalo za vklop in časovni rele za nastavitev delovanja po izklopu. Vsak ventilator je priključen na svojo tuljavo s čimer je preprečeno širjenje neprijetnih vonjav med stanovanji.
Za predvidene kuhinjske nape se vgradijo ločene prezračevalne tuljave za vsako stanovanje.
Lokalno hlajenje: V stanovanjskih enotah je vgrajena montažna omarica z vsemi potrebnimi cevnimi in elektro priključki za kasnejšo priključitev hladilnih naprav.
Elektro instalacije: vsako stanovanje bo imelo svojo merilno mesto električne energije, na katero bo vezana tudi pripadajoča shrambi. V stanovanjih so predvidene kombinirane stanovanjske podometne razdelilne omarice.
Telekomunikacijsko omrežje: vsem uporabnikom bo omogočen priklop na telekomunikacijsko omrežje.
Elektrika: elektro energetski dovod do obravnavanega objekta se izvede iz obstoječe transformatorske postaje TP Koren iz NN zbiralnic in se zaključi v priključni omari na fasadi objekta. Dovodi do stanovanjskih razdelilnikov bodo izvedeni s kabli položenimi v ceveh v plošči etaže. Glavni razdelilnik je nameščen v pritličju v energetskem prostoru. V njem bo nameščen števec skupne rabe in števci stanovanj. Dvigalo se napaja iz razdelilnika skupne rabe. Razdelilnik skupne rabe bo napajal razsvetljavo in močnostne porabnike po hodnikih in toplotno podpostajo.
Instalacije v stanovanjskih enotah se izvedejo podometno v celoti. Kabli se uvlačijo v instalacijske cevi. Izvodi se zaključijo z instalacijskimi sponkami na katere lastnik stanovanja sam namesti izbrano svetilko. Od svetilnih teles se montirajo le svetlobna telesa v shrambah in na balkonu. V ostalih prostorih se instalacija namenjena razsvetljavi zaključi kot izvod. Ob vratih stanovanja je nameščen domofon.
Hodniki v nadstropjih ter stopnišče se vklapljajo preko svetlobnih senzorjev. Tu je predvidena tudi varnostna razsvetljava. Stikala in vtičnice so zmontirana.
Objekt bo priključen na javno telekomunikacijsko omrežje.
Predviden pričetek del zima/pomlad 2019.
Predviden zaključek del zima 2019/2020.
NAKUP STANOVANJA
Za potrditev vaše namere za nakup stanovanja je potrebno plačati aro v višini 10% vrednosti stanovanja.
PLAČILNI POGOJI
Ob podpisu predpogodbe kupec plača aro v višini 10% prodajne cene stanovanja.
90% prodajne cene stanovanja plača kupec 15 dni pred izročitvijo stanovanja.
CENE STANOVANJ
Cena stanovanj so 1350 EUR/m2 + 9,5% DDV.
Za dodatne informacije pokličite 041 761 957- Stanko ali pišite na Ta e-poštni naslov je zaščiten proti smetenju. Potrebujete Javascript za pogled.
Nepremičnine Koroška Simobilia smo specializiran posrednik nepremičnin:
NEPREMIČNINSKO SVETUJEMO
OMOGOČIMO VAREN PRENOS LASTNINSKE PRAVICE
NUDIMO KOMPLETNO NEPREMIČNINSKO STORITEV NA ENEM MESTU
UREDIMO DOKUMENTACIJO
SIMOBILIA nepremičnine d.o.o., Prisoje 60a, 2391 Prevalje
Prodajo, nakup, oddaja in najem hiš, poslovnih prostorov, stanovanj, vikendov, stavbnih in kmetijskih zemljišč.
POŠLJITE POVPRAŠEVANJE na info@simobilia.si ali nas pokličite na 031 649 378

Prodajate ali oddajate nepremičnino? Zaupajte to nalogo nam. Smo specializirani posrednik nepremičnin. Preverite ponudbo nepremičnin na naši spletni strani, ali pa nas kontaktirajte.
Med ponudbo nepremičnin niste našli iskanega? Zaupajte to nalogo nam. Takoj ko najdemo nepremičnino po vaših željah, vas bomo obvestili po e-pošti ali z SMS-om.