Stavbna zemljišča

Gradbena parcela, Dobrije, Ravne na Koroškem

Opis nepremičnine

Projekt za spodnjo hišo ob potoku je sestavljen po novem gradbenem zakonu in vsebuje, PGD, PZi(armature, strojne inšt. in elektro inšt.)
 
Hiša je treh etažah:
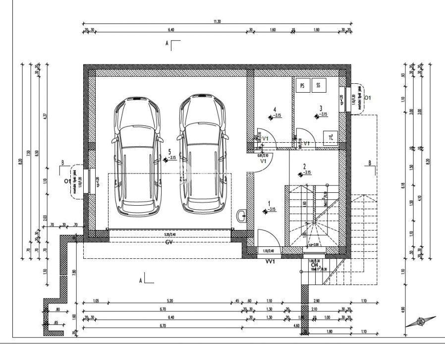
  • klet (garaža za dva avtomobila, kurilnica s pralnico in sušilnico)
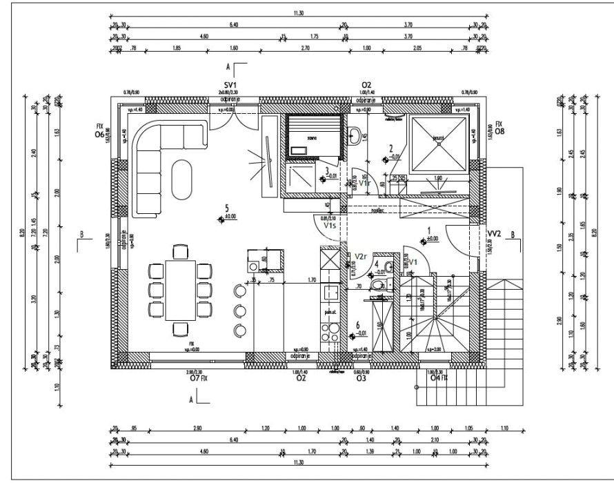
  • pritličje (hodnik, wellness, manjši wc s shrambo, velika dnevna soba z kuhinjo in jedilnico, izhod na teraso)
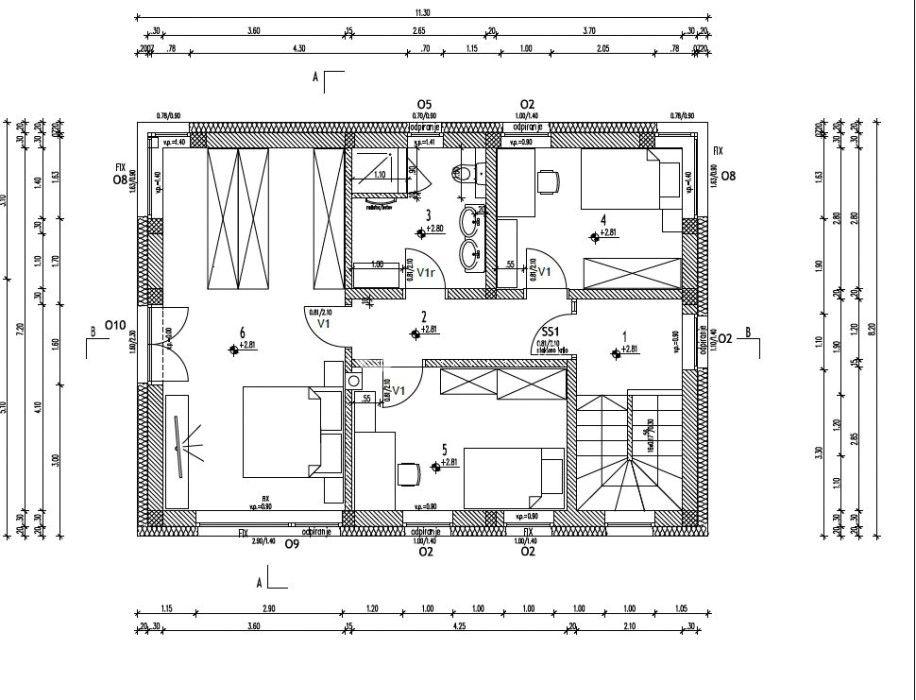
  • nadstropje (velika spalnica in dve otroški sobi, izhod na balkon)
 
- Velikost zemljišča 826m2.
- Mestni vodovod
- Kanalizacija(čistilna naprava);
- Dostop prek asfaltne ceste.

 

 

 

Za dodatne informacije pokličite 041 761 957- Stanko ali pište na Ta e-poštni naslov je zaščiten proti smetenju. Potrebujete Javascript za pogled.

Nepremičnine Koroška Simobilia smo specializiran posrednik nepremičnin:

NEPREMIČNINSKO SVETUJEMO

OMOGOČIMO VAREN PRENOS LASTNINSKE PRAVICE

NUDIMO KOMPLETNO NEPREMIČNINSKO STORITEV NA ENEM MESTU

UREDIMO DOKUMENTACIJO

 

Nepremičninski svetovalec

Iva KUMPREJ GOLOB

Tel: +(386) 31 649 378


O nas

SIMOBILIA nepremičnine d.o.o., Prisoje 60a, 2391 Prevalje

Nudimo

Prodajo, nakup, oddaja in najem hiš, poslovnih prostorov, stanovanj, vikendov, stavbnih in kmetijskih zemljišč.

 

POŠLJITE POVPRAŠEVANJE na info@simobilia.si ali nas pokličite na 031 649 378

 

Prodajate ali oddajate nepremičnino? Zaupajte to nalogo nam. Smo specializirani posrednik nepremičnin. Preverite ponudbo nepremičnin na naši spletni strani, ali pa nas kontaktirajte.

Povpraševanje po nepremičninah

Med ponudbo nepremičnin niste našli iskanega? Zaupajte to nalogo nam. Takoj ko najdemo nepremičnino po vaših željah, vas bomo obvestili po e-pošti ali z SMS-om.

Obveščajte me

© 2025 Simobilia | Izdelava: Spletna agencija Si-TEAM